Conservation of the Religious Monuments in Butrint
A DEDICATED CONSERVATION PROJECT AIMED AT STABILIZING AND CONSOLIDATING THE FORUM'S HISTORIC STRUCTURES
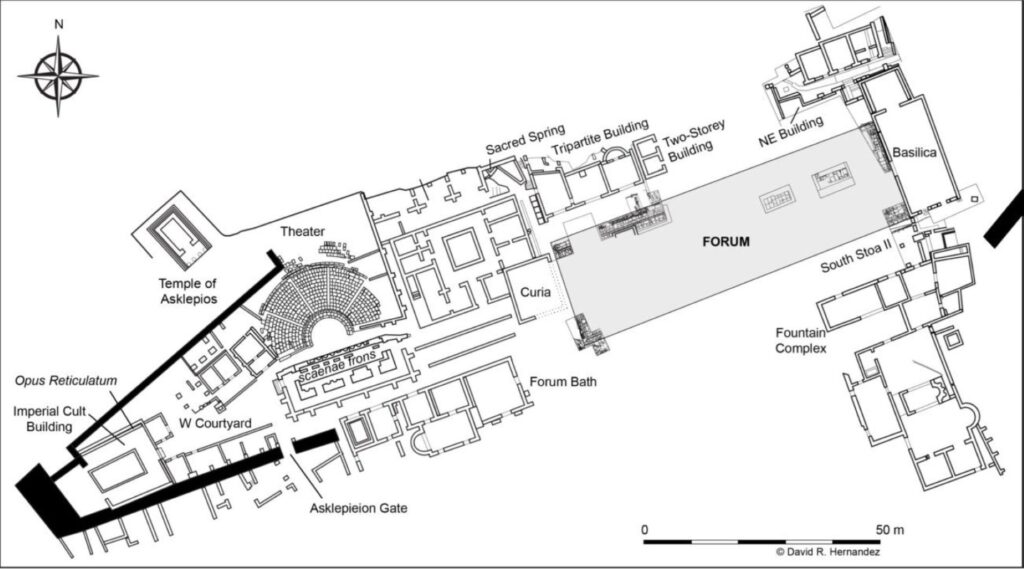
The Roman Forum at Butrint stands as one of the most architecturally significant and expansive areas within the ancient city, encompassing monumental structures dating from the 3rd century B.C. to the 16th century A.D. Over the centuries, the forum has suffered from vegetation overgrowth, erosion, seasonal flooding, and general deterioration of its masonry and construction materials.
To address these challenges, the Butrint Management Foundation (BMF) has launched a dedicated conservation project aimed at stabilizing and consolidating the forum’s historic structures. The primary objective is to preserve and structurally reinforce the buildings that define the forum’s historical core. These include Roman-period, late-antique, and early medieval constructions such as the Roman Basilica, the NE Building, and the South Stoa, among others. These monuments reflect a continuous historical sequence and are essential to understanding Butrint’s civic and architectural development.
The project focuses on two primary conservation concerns:
- Wall Structures: Mortared walls dating from the 1st to 13th centuries A.D. are generally in good condition but require conservation to ensure long-term stability. Walls of earlier periods (3rd-1st century B.C.) are ashlar and generally robust, requiring minimal conservation.
- Floor Surfaces: Surviving floors, including stone pavements and mortared layers, are highly sensitive and currently unsuitable for foot traffic. To protect these surfaces, they will be covered with gravel and sand layers as a preventive measure against further deterioration.
75000
The conservation process will be implemented in structured phases. It begins with digital documentation, followed by vegetation clearance, stabilization of waterlogged areas, and targeted conservation of individual buildings. Where preservation in situ is not feasible due to extensive degradation, protective backfilling or minimal surface covering will be employed. All interventions adhere to international standards established by UNESCO, ICOMOS, and Albanian heritage legislation.
Progress to date includes the completion of digital recording, removal of invasive vegetation, stabilization of key structures, and integration of the forum into BMF’s wider site maintenance program. Crucially, the project is aligned with the Butrint Integrated Management Plan, incorporating participation from local communities and stakeholders to ensure long-term sustainability.
The conservation of the Roman Forum marks a foundational step in preserving Butrint’s most iconic civic space. It serves not only to safeguard the site’s integrity but also to exemplify sustainable, research-based site management. By enhancing accessibility and interpretation while maintaining authenticity, the project aims to secure the cultural significance of the forum for future generations.





